Suelo residencial en venta en Calle Alcaudón Real, Mijas
Parcela urbana con proyecto y licencia en Jardines del Águila
Descubre una excelente oportunidad de inversión en la exclusiva urbanización Jardines del Águila, una de las zonas con mayor proyección de Mijas Costa. Se trata de una parcela urbana de 600 m², situada en un entorno natural, tranquilo y privilegiado, muy cerca del reconocido Cerrado del Águila Golf Resort, ideal para quienes buscan privacidad, calidad de vida y un ambiente relajado a pocos minutos de la costa.
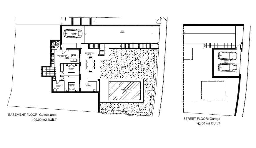
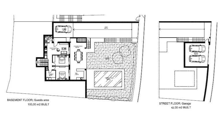
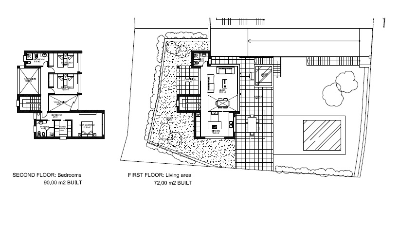
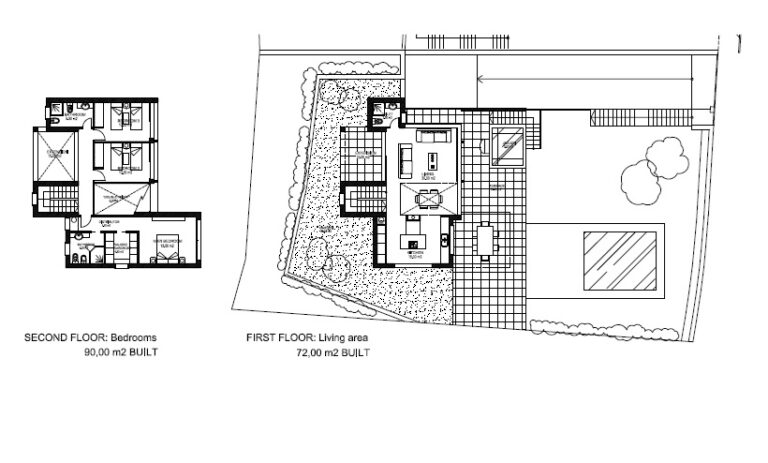
La parcela se vende con proyecto y licencia de obra ya aprobada, lo que permite iniciar la construcción de inmediato, ahorrando tiempo y costes en trámites. Con una edificabilidad del 0,24 y la posibilidad de construir hasta 3 plantas, este solar ofrece un magnífico potencial para diseñar una villa independiente a medida, con amplios espacios, luz natural y un estilo totalmente personalizado.
Gracias a su orientación sur, disfrutarás de iluminación durante todo el día y de unas vistas abiertas hacia Fuengirola y el mar, creando un espacio ideal para una vivienda con grandes ventanales, piscina privada, zonas ajardinadas y un garaje amplio para varios vehículos.
La urbanización cuenta con todas las dotaciones esenciales, lo que garantiza comodidad y seguridad en todo momento:
- Agua
- Electricidad
- Alcantarillado
- Alumbrado público
- Aceras
- Acceso por vía urbana
Además, se encuentra a tan solo 5 km del centro de Fuengirola, lo que proporciona una combinación perfecta entre tranquilidad y cercanía a servicios como supermercados, colegios, restaurantes, centros de salud y zonas comerciales.
Características básicas
- Superficie total del terreno: 600 m²
- Superficie edificable: 144 m²
- Tipo de terreno: Urbano (solar)
- Uso permitido: Residencial unifamiliar (chalets)
- Plantas edificables: 3
- Proyecto y licencia incluidos
- Ubicación: Calle Alcaudón Real, Jardines del Águila, Mijas
Una oportunidad única para construir la casa de tus sueños o realizar una inversión segura en una zona en plena expansión.
No dejes escapar este fantástico solar en una ubicación privilegiada de Mijas Costa.
+34 611 64 56 94

